


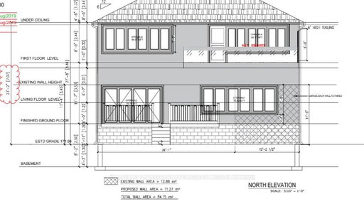
Builders, renovators, and investors. Create something exceptional in a prime location. Situated on a premium 50' x 125' lot backing onto a park, this property offers the opportunity to renovate or build a stunning 3,000 sq. ft. custom home. Permitted and approved drawings are in place. Property is being sold as-is, where-is.

